
solgt





solgt
Søvej 8, 2665 Vallensbæk Strand
SKRIV IKKE HER
Søvej 8
Vil du bo i Storkøbenhavn og alligevel have naturoplevelser tæt på, så er Søvej 8 ved
Vallensbæk Strand en oplagt god adresse; beliggende på strandsiden med gå-afstand til et
fantastisk skønt naturområde med indsøer, kystlinje og havnemiljø.
For børnefamilierne har kommunen gode skoletilbud, og mange fritidstilbud der giver mulighed
for en god, aktiv og alsidig hverdag, for både voksne og børn, dækkende fra mere end
almindelige sportsaktiviteter, til internationalt vandskicenter, internationalt ridecenter og golfklub.
Håndværksmesterens eget hus, opført i mursten i 1994, er med sit glaserede tegltag en meget
flot ejendom, der passer godt ind i miljøet af andre smukke huse på vejen. De flotte kviste,
komplet inddækkede i zink, passer godt til huset arkitektur og øvrige materialevalg i høj kvalitet.
At ejendommen, med de strikse krav der er til isolering i dag, opnår et B-energimærke, vidner
om at denne bolig er tegnet og bygget med omtanke, og med et fremsyn som nye ejere kan
nyde glæde af.
Gulvvarmen er drevet af naturgasanlægget, og Nilan-varmepumpen er både med til at sikre et
godt indeklima, og også en genindvinding af varmen så varme-økonomien også er fornuftig.
Materialevalgene er stilsikre og smagfulde, og der bydes velkommen i køkken/alrummet, både
med lyse flader og varmt træ i denne imponerende sektion, der med åben forbindelse, via det
store komplette skydeparti, giver adgang til den meget store terrasse, anlagt i smukt hårdttræ,
der kan overdækkes og aflukkes via motorstyring af diverse skinnekørende markiser. Det skal
opleves. Rundt om hjørnet på terrassen er spasektionen anlagt diskret og privat. Det skal også
opleves.
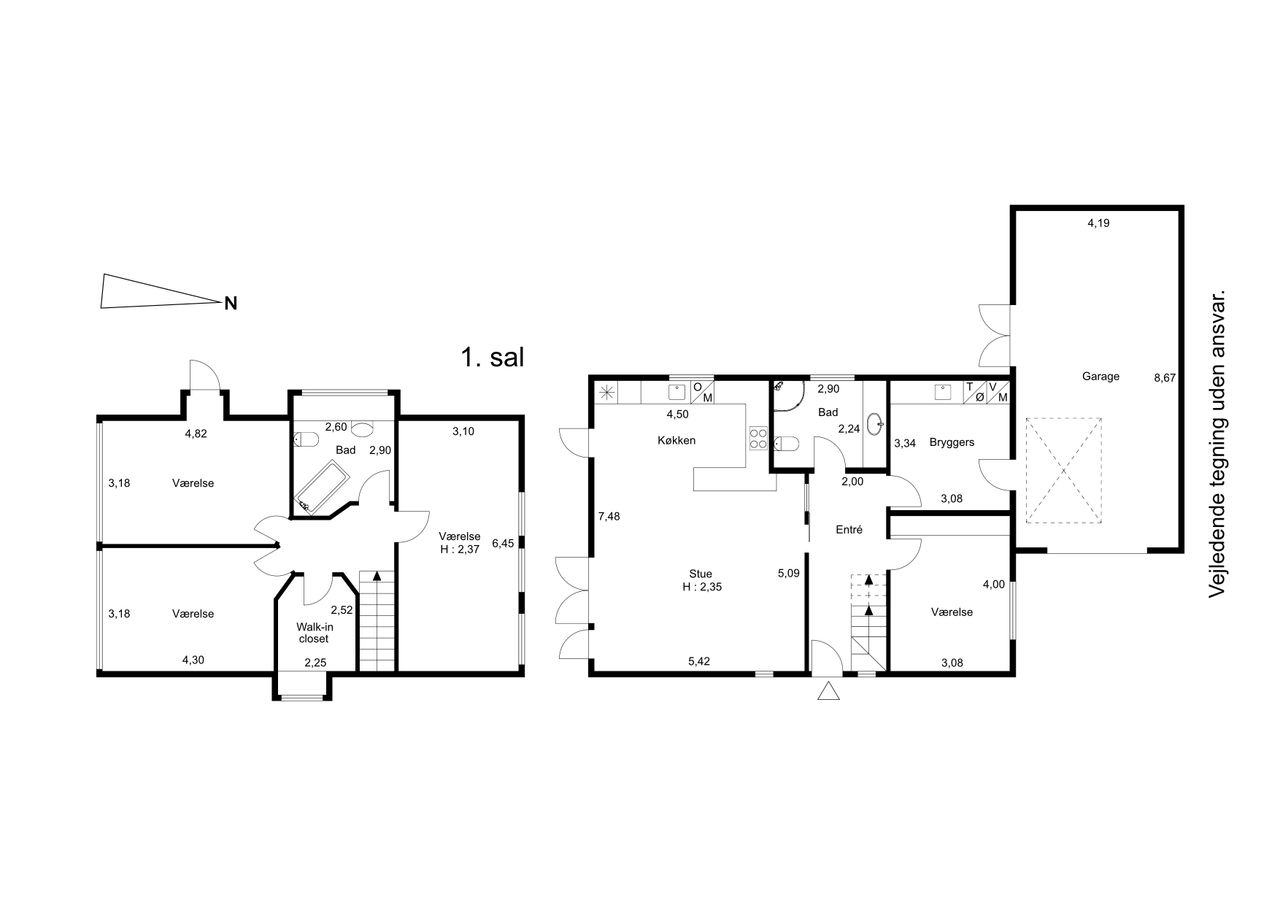
Boligen byder på mulighed for forældreafdeling, både i stueplan, med rummeligt soveværelse og
et eksklusivt brusebadeværelse, eller på 1.salen, hvor der er 2 lige store
børne-/ungdomsværelser (med hemse), et walk-in closet, det usædvanligt lækre badeværelse
med kar, og et meget stort gavlværelse, der svarer i størrelsen til et dobbeltværelse.
I stueplan har du tillige et stort bryggers med direkte adgang til enhver hobby-m/k drøm. 39
kvm. stor, og med adskillige store ovenlys, kan den grundlag for mange hobby-aktiviteter, og
opbevaring af mange kære ejendele.
Søvej 8 er en ejendom der byder på en dejlig og funktionel bolighverdag, og på oplevelser når
der er ledige stunder til dette. Det er en af de ejendomme du skal ud og opleve.
Velkommen til Søvej 8, 2665 Vallensbæk.
Kunne denne bolig være dit nye hjem? Kontakt os på 4390 9010 eller 2670@estate.dk for en fremvisning
eller en gratis salgsvurdering - vi har en stor berøringsflade, er fagligt kompetente, og leverer resultater
HVER gang.
<a title="Det vigtigste for dig, er også det vigtigste for din ejendomsmægler: Et hurtigt boligsalg til en god
pris. Estate Greve & Solrød har som din ejendomsmægler stort fokus på salgsresultater, så vi er sikre på
at ligge i toppen af ejendomsmæglerne i Greve, når det gælder korte liggetider og høje
kvadratmeterpriser på vores samlede boligsalg langs kysten. Hos Estate Greve & Solrød vil vi gerne gøre
lidt mere ud af din salgsoplevelse hos Estate Greve, end blot det hurtige boligsalg til den gode pris. Vi
mener hos ejendomsmæglerkæden Estate Greve & Solrød nemlig, at god service bør være gratis. Derfor
mærker du hurtigt den gode stemning og det høje serviceniveau hos din lokale ejendomsmægler Greve,
Estate Greve & Solrød, når du handler med din ejendomsmægler Estate Greve både som køber &
sælger. Her hjælper vi alle hinanden, og vi har derfor alle en andel i forretningens høje kundetilfredshed
hos Estate Greve & Solrød."href="http://www.estate.dk/ejendomsmaeglere/koebenhavn/estate-greve">Se
flere boliger fra ejendomsmægler i Greve Estate Greve & Solrød</a>
<a title="Din ejendomsmægler i Greve Estate Greve & Solrød"href="https://www.facebook.com/estategrevesolrod/">Følg din ejendomsmægler Estate Greve & Solrød Greve på Facebook</a>
Søvej 8
Vil du bo i Storkøbenhavn og alligevel have naturoplevelser tæt på, så er Søvej 8 ved
Vallensbæk Strand en oplagt god adresse; beliggende på strandsiden med gå-afstand til et
fantastisk skønt naturområde med indsøer, kystlinje og havnemiljø.
For børnefamilierne har kommunen gode skoletilbud, og mange fritidstilbud der giver mulighed
for en god, aktiv og alsidig hverdag, for både voksne og børn, dækkende fra mere end
almindelige sportsaktiviteter, til internationalt vandskicenter, internationalt ridecenter og golfklub.
Håndværksmesterens eget hus, opført i mursten i 1994, er med sit glaserede tegltag en meget
flot ejendom, der passer godt ind i miljøet af andre smukke huse på vejen. De flotte kviste,
komplet inddækkede i zink, passer godt til huset arkitektur og øvrige materialevalg i høj kvalitet.
At ejendommen, med de strikse krav der er til isolering i dag, opnår et B-energimærke, vidner
om at denne bolig er tegnet og bygget med omtanke, og med et fremsyn som nye ejere kan
nyde glæde af.
Gulvvarmen er drevet af naturgasanlægget, og Nilan-varmepumpen er både med til at sikre et
godt indeklima, og også en genindvinding af varmen så varme-økonomien også er fornuftig.
Materialevalgene er stilsikre og smagfulde, og der bydes velkommen i køkken/alrummet, både
med lyse flader og varmt træ i denne imponerende sektion, der med åben forbindelse, via det
store komplette skydeparti, giver adgang til den meget store terrasse, anlagt i smukt hårdttræ,
der kan overdækkes og aflukkes via motorstyring af diverse skinnekørende markiser. Det skal
opleves. Rundt om hjørnet på terrassen er spasektionen anlagt diskret og privat. Det skal også
opleves.
Boligen byder på mulighed for forældreafdeling, både i stueplan, med rummeligt soveværelse og
et eksklusivt brusebadeværelse, eller på 1.salen, hvor der er 2 lige store
børne-/ungdomsværelser (med hemse), et walk-in closet, det usædvanligt lækre badeværelse
med kar, og et meget stort gavlværelse, der svarer i størrelsen til et dobbeltværelse.
I stueplan har du tillige et stort bryggers med direkte adgang til enhver hobby-m/k drøm. 39
kvm. stor, og med adskillige store ovenlys, kan den grundlag for mange hobby-aktiviteter, og
opbevaring af mange kære ejendele.
Søvej 8 er en ejendom der byder på en dejlig og funktionel bolighverdag, og på oplevelser når
der er ledige stunder til dette. Det er en af de ejendomme du skal ud og opleve.
Velkommen til Søvej 8, 2665 Vallensbæk.
Kunne denne bolig være dit nye hjem? Kontakt os på 4390 9010 eller 2670@estate.dk for en fremvisning
eller en gratis salgsvurdering - vi har en stor berøringsflade, er fagligt kompetente, og leverer resultater
HVER gang.
<a title="Det vigtigste for dig, er også det vigtigste for din ejendomsmægler: Et hurtigt boligsalg til en god
pris. Estate Greve & Solrød har som din ejendomsmægler stort fokus på salgsresultater, så vi er sikre på
at ligge i toppen af ejendomsmæglerne i Greve, når det gælder korte liggetider og høje
kvadratmeterpriser på vores samlede boligsalg langs kysten. Hos Estate Greve & Solrød vil vi gerne gøre
lidt mere ud af din salgsoplevelse hos Estate Greve, end blot det hurtige boligsalg til den gode pris. Vi
mener hos ejendomsmæglerkæden Estate Greve & Solrød nemlig, at god service bør være gratis. Derfor
mærker du hurtigt den gode stemning og det høje serviceniveau hos din lokale ejendomsmægler Greve,
Estate Greve & Solrød, når du handler med din ejendomsmægler Estate Greve både som køber &
sælger. Her hjælper vi alle hinanden, og vi har derfor alle en andel i forretningens høje kundetilfredshed
hos Estate Greve & Solrød."href="http://www.estate.dk/ejendomsmaeglere/koebenhavn/estate-greve">Se
flere boliger fra ejendomsmægler i Greve Estate Greve & Solrød</a>
<a title="Din ejendomsmægler i Greve Estate Greve & Solrød"href="https://www.facebook.com/estategrevesolrod/">Følg din ejendomsmægler Estate Greve & Solrød Greve på Facebook</a>



